Project
-
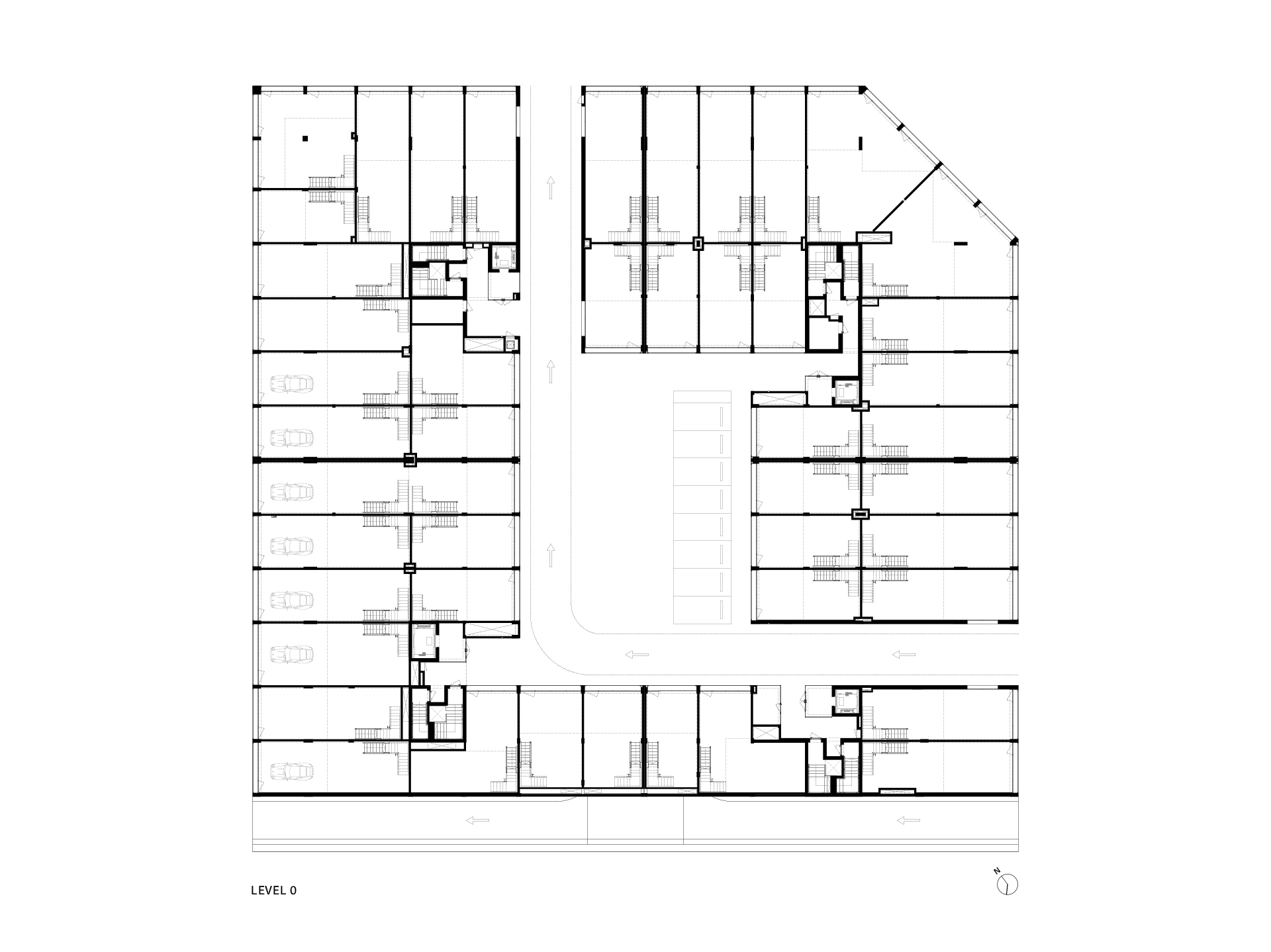
Plot 62 is a commercial project located within Shuwaikh industrial Area, in the chamfered corner plot of 21st street with 26th street. This building of simple rectangular shapes, neutral tones and raw materials, fills the existing urban volumetric gap. It is composed by three levels above the ground and one underground, vertically connected through four main access cores, exterior stairs and other partial connections, including car elevators. Its organized around an open flexible central courtyard, suitable for several different types of use, where to is directed all the human flux. The building features three dynamic street-facing facades, primarily glazed and adorned with branding and store advertisements, where the main and secondary pedestrian entrances are located, along with access to the car parking area.
The vast programme is logically structured on the four layers that can host, from top to bottom, several office spaces, as well as stores or workshops and warehouses, along with an indoor parking area in the lower level. All activities revolve around the central square, which is a focal point in this structure, designed to be the core of the project dynamics and a new important nucleus of the city's fabric. The technical roof, as well as several compartments throughout the entire building, comply with the complex infrastructural specifications and functional demands of an urban edification of this scale, fulfilling its needs and of those who use it.
READ MORE
CLOSE READ MORE
Location
Shuwaikh Industrial , Kuwait
Year
2024
Built-up Area
11 923 sqm
Status
Complete




















Team
Carla Barroso, Telmo Rodrigues, João Costa, António Brigas, Elvino Domingos , Gonçalo Silva, Nuno Roque, Mariana Gouveia, Abdul Aziz, Lionel Estriga, Pedro Miranda, Bruno Alves, Tiago Brito, Tiago Lopes, Duarte Correia, Hassan Javed
MEP: Ruben Gonçalves, João Catrapona, Mohamed Hassan, Ahmed Shawqi Sadeeq, Ron Favor, Bruno Simões
Graphic Design: Fábio Dimas, Aquilino Sotero
Site Supervision: Mohammed Shata, Marwa Marzouq, Ahmed M.Quotab, Roderick Mangampo, Shoaib Mujahid, Ahmed Abdulaziz, Hassan Javed
Consultants
Structure: R5 Engineers
Photography
Mohammad Taqi Ashkanani