Project
-
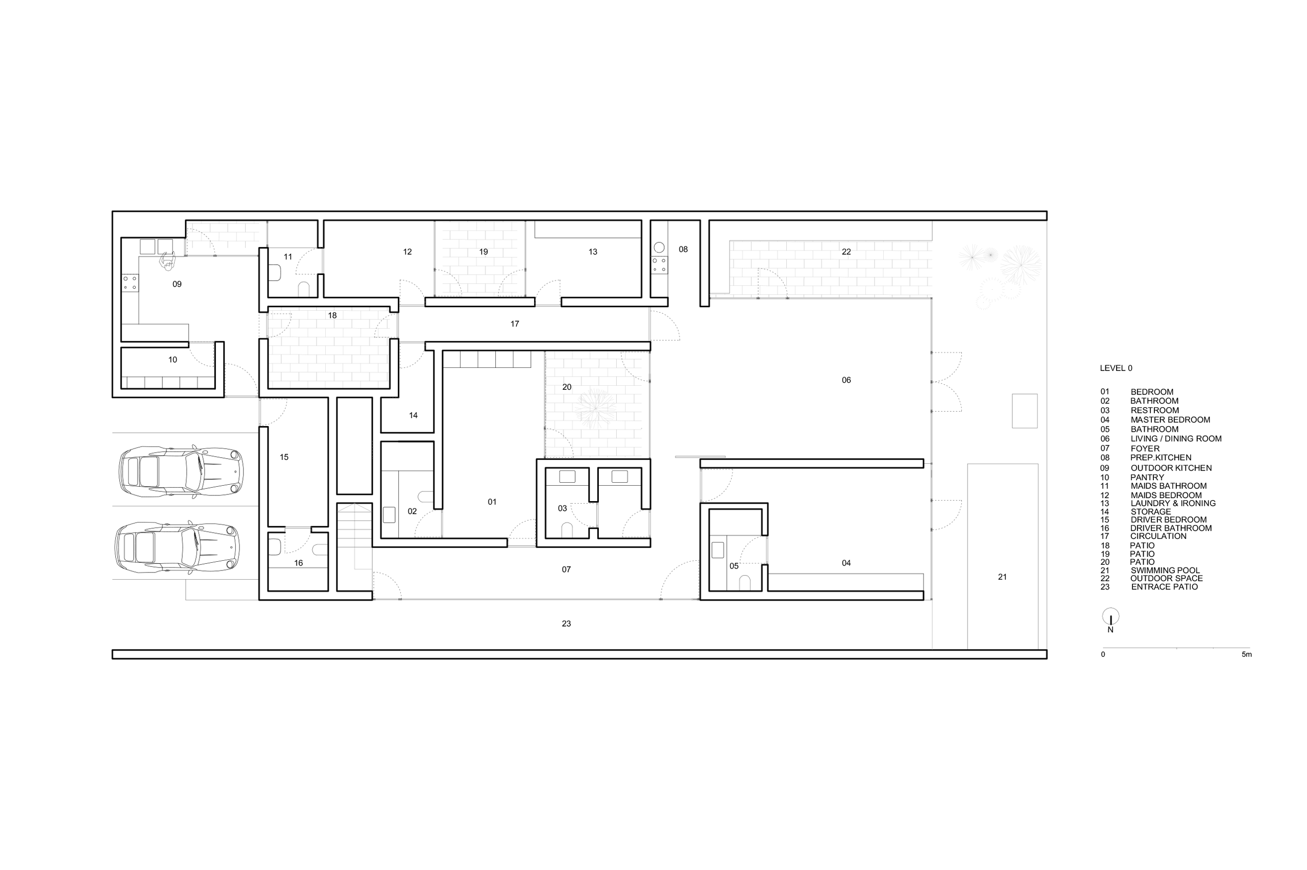
Situada na margem do canal, esta casa foi desenhada com a intenção clara de maximizar as vistas sobre a praia, mesmo a partir de espaços que, à partida, não estariam idealmente orientados para esse enquadramento. Para o conseguir, o sistema de distribuição foi cuidadosamente planeado, de forma a manter flexibilidade e fluidez na circulação interior.
Para privilegiar a vista para a praia, todos os compartimentos de serviço foram compactados junto à entrada do lote, permitindo que as partes mais relevantes do programa se aproximassem da água. O piso superior segue uma lógica semelhante, com uma cobertura inclinada que cobre parcialmente um amplo terraço, oferecendo vistas panorâmicas sobre a paisagem e a frente de água. O carácter unidirecional da casa reforça o seu foco na praia e minimiza a ligação à via de acesso.
Verticalmente, o pátio central tem um papel determinante na organização do programa. Funciona como chaminé de ventilação e elemento de iluminação natural e, pela sua transparência, garante vistas para o quarto localizado ao centro. A partir da sala social, o pátio permite ainda um enquadramento contínuo até à piscina, à praia privada e ao canal.
Localização
Khiran, Kuwait
Ano
2022
Área de Construção
450 m²
Estado
Concluído















Equipa
Carla Barroso, Carlo Palma, João Costa, Telmo Rodrigues
Duarte Correia, Elvino Domingos, Francisco Leite, Italo Ortega, João Serafim, Lionel Estriga, Luís Esteves, Michel Silvestre, Pedro Batista, Tânia Oliveira
Instalações Técnicas: Mohammed Hassan, Rúben Rodrigues, Sérgio Sousa
Paisagismo: Susana Pinheiro
Neuza Barbosa
Design Gráfico: Aquilino Sotero, Diogo Monteiro, Nelson Ferreira
Consultores
Estruturas: JPO Engenharia
Fotografia
Mohammad J. Taqi